Котел КПа 1000 в Урджаре

Котел паровой 1000 кг 115 С на газе
Паровой котел 1000 кг 115 С на газе
Чертеж газового парового котла 1000 кг 115 С
Газовый паровой котел 1000 кг 115 С чертеж
Паровой газовый котел 1000 кг в час с температурой 115 С
Газовый паровой котел 1000 кг в час с температурой 115 С
Газовый жаротрубный котел 1000 кг пара в час 115 С
Жаротрубный газовый котел 1000 кг пара в час 115 С
Паровой котел 1000 кг в час на газу температура пара 115 С изготовление
Изготовление парового котла 1000 кг в час на газу температура пара 115 С
Паровой газовый котел 1000 кг температура пара 115 С изготовление
Изготовление парового газового котла 1000 кг температура пара 115 С
Паровой котел на газе 1000 кг 115 С производство
Производство газовых паровых котлов 1000 кг 115 С
Схема парового котла 1000 кг 115 С на газу
Паровой котел 1000 кг 115 С на газе схема
Котел паровой 1000 кг 115 С на газе
Чертеж газового парового котла 1000 кг 115 С
Паровой газовый котел 1000 кг в час с температурой 115 С
Газовый жаротрубный котел 1000 кг пара в час 115 С
Паровой котел 1000 кг в час на газу температура пара 115 С изготовление
Паровой газовый котел 1000 кг температура пара 115 С изготовление
Паровой котел на газе 1000 кг 115 С производство
Схема парового котла 1000 кг 115 С на газу
Цена
6 840 420 ₸
От 6 840 420 ₸ с доставкой до г.
Логотип WhatsApp Связаться
по WhatsApp
  • Непрерывная выработка сухого пара независимо от нагрузки котла
  • Отсутствие температурных расширений обеспечивает надежность конструкции
  • Подпитка котла производится даже холодной водой +5 ºС
  • Удобная очистка поверхностей нагрева без остановки котла

Технические характеристики

МаркаSTEAMEXPERT
ВидПаровой котел КП
Вид топкиГазовая горелка
Конструкция котлаЖаротрубный
Производительность1000 кг/ч
Производительность1.0 т/ч
Максимальная тепловая мощность0.74 МВт
Диапазон регулирования мощности40-100 %
ТопливоГаз
Низшая теплота сгорания проектного топлива9400 кКал/кг
КПД котла на ГАЗЕ, не менее90 %
Расход топлива79 нм³/ч
Расход условного топлива107 кг/ч
Температура пара, не более115 °С
Давление пара, не более0.07 МПа
Давление пара, не более0.7 (кгс/см²)
Давление пара, не более0.7 бар
Полный объем котла3.35 м³
Объем паровой части0.31 м³
Аэродинамическое сопротивление15 (1.5) Па (мм. вод. ст.)
ТягаПринудительная
Объем топочной камеры1.91 м³
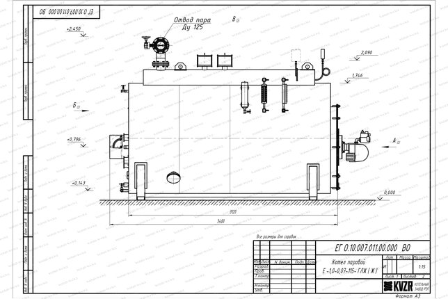
Размер топочной камеры, диаметр*глубина1195х1700 мм
Присоединительные размеры выхода пара125 Ду
Присоединительные размеры по водяному тракту32 Ду
Присоединительные размеры по дымовым газам / диаметр дымовой трубы350 мм
Габаритные размеры котла, длина*ширина*высота3400х1800х2100 мм
Масса3000 кг
ЭнергоэффективностьВысокая
БрендSTEAMEXPERT

Паровой котел КПа 1000 в Урджаре

Промышленный паровой котел КПа 1000 Урджар предназначен для производства пара температурой до 115 °С и давлением 0.07 МПа на технологические нужды для вашего производства. Парогенератором пользуются бетонные заводы при производстве ЖБИ изделий, химические предприятия, строительные организации, воинские части, больницы, бани, предприятия нефтегазовой, кожевенной, пищевой.

Наши паровые котлы КПа 1000 имеют следующие преимущества

  • Большая поверхность испарения препятствует выносу капель воды и увеличивает скорость испарения
  • Дополнительное разделение пара от воды в паросборной камере. Повышается качество пара путем улавливания капелек воды из пара
  • Большая паровая камера обеспечивает непрерывную подачу пара при любой нагрузке и сокращает время выхода на заявленную производительность
  • Эффективная конвективная часть котла способствует высокой скорости нагрева воды
  • Отсутствие тепловых расширений благодаря комбинированной компановке
  • Большой водяной объем котла позволяет производить подпитку холодной водой +5° без температурных колебаний
  • Чистка конвективного пакета паром без остановки котла. На задней стенке агрегата находятся лючки для обдувки. Обдувка производится аппаратом для обдувки при минимальной нагрузке и максимальном давлении

Жаротрубный паровой котел КПа 1000 низкого давления можно перевести в водогрейный режим изменив схему подключения.

Устройство парового котла КПа 1000 кг в час

Промышленный стальной паровой котел КПа 1000 изготавливается в горизонтальном исполнении и состоит из двух цилиндров, паросборника, конвективной части. Цилиндры размещаются один в другом и соединяются фланцами. Внутренний цилиндр – это топочная часть генератора. Межцилиндрическое пространство заполняется водой, сверху приваривается паросборник, на который крепятся 2 предохранительных клапана.

К фронтовой плите крепится горелка для подачи топлива в топку жаротрубного котла. Паровой котел КПа 1.0 т может работать с отечественными горелками EMMA и импортными UNIGAS, BALTUR, ECOSTAR, FBR S.R.L. В качестве топлива может применяться природный газ низкого и среднего давления, а также сжиженный газ. Продукты сгорания выводятся чрез дымовую трубу. В основании дымовой трубы установлен предохранительный клапан.

Вода в цилиндрический котел КПа 1000 подается насосом. На паровой промышленный котел желательно устанавливать рабочий и резервный насосы. Дренажи и воздушники производят дренирование трубной системы от шлама и удаление скапливающего воздуха.

Безопасность установки обеспечивают клапаны. При повышении давления выше допустимого, срабатывают клапаны осуществляя автоматический выпуск пара.

Автоматика парового котла предусмотрена для управления и защиты. В случае отклонения от заданных параметров происходит световой и звуковой сигнал.

Котел КПа 1000 кг принцип работы

Топливо сгорает в топочной части парового котла КПа 1,0 тонны, окруженной водяной охлаждаемой рубашкой. Продукты горения проходят через трубный пучок и выходят в верхней части генератора.

Трубный пучок находится за камерой горения. Трубки заполнены водой и омываются горячими газами, за счет чего происходит теплообмен. Пар образуется при испарении нагреваемой воды и собирается в верхней части котлоагрегата, над которой выполнена паросборная камера, далее через паропровод направляется потребителю на технологические нужды.

Монтаж и подключение

Горизонтальный газовый паровой котел КПа 1000 для производства пара поставляется блоками максимальной заводской готовности. Агрегат устанавливается в котельной на специально подготовленную ровную поверхность. Подсоединяется по воде, устанавливается запорная арматура на подводящем трубопроводе и отводящем паропроводе, предохранительные клапаны и контрольно-измерительные приборы. Подсоединяется вентилятор и автоматика.

Купить котел КПа 1000

Для того, что бы купить паровой котел КПа 1000 в Урджаре вы можете сделать заявку по телефону +7-7172-69-59-73, либо оформить заявку онлайн. Менеджеры дадут консультацию по подбору вспомогательного оборудования для выбранных вами моделей и рассчитают стоимость доставки. Транспортирование котлоагрегата и вспомогательного оборудования до объекта осуществляется автомобильным транспортом.

Комплект поставки

Клапан предохранительный КПС
Клапан предохранительный самопритирающийся
2 штуки
Вентиль Ду 20
Вентиль Ду 20
1 штука
Шаровый кран
Кран шаровый
6 штук
Указатель уровня
Указатель уровня
2 штуки
Устройство запорное Ду 20
Запорное устройство Ду 20
2 штуки
Затвор Ду 80
Затвор Ду 80
1 штука
Клапан обратный
Клапан обратный
1 штука
Кран трехходовой ДУ 15
Кран Ду 15
3 штуки
Манометр ДМ2005 Сг 10.0 кгс см2
Манометр ДМ2005Сг 10,0 кгс/см2
2 штуки
Манометр МП 160
Манометр МП 160
1 штука

Дополнительно потребуется

Дизельная горелка СибСтронг
Цена по запросу
Дымовые трубы
Цена по запросу
CDM насос
Насос CDM 1-5 (0.37 кВт)
Цена по запросу
Pedrollo насос
Насос Pedrollo CP-132 (0.55 кВт)
Цена 256 351 тг.
Газоход котла
Цена по запросу

Сертификаты товара

Сертификат на котлы отопительные паровые КП
Сертификат на котлы отопительные паровые КП

Опросные листы

Все опросные листы
Опросный лист на паровой котел
Заполнить опрос

Собственное производство

Котельный завод производит
  • Паровые котлы от 300 кг до 2.5 тонны пара в час
  • Промышленные водогрейные котлы от 150 КВт до 4 МВт на всех видах топлива
  • Механические топки ТШПМ, шурующая планка и ТЛПХ, ленточное полотно прямого хода
  • Циклоны для очистки воздуха и дымовых газов для производств и промышленных отраслей
  • Транспортеры и системы топливоподачи и шлакоудаления
Подробнее о производстве
Собственное производство
Смотреть видео
с производства